Panoramica
- Locale commerciale
- Tipologia
2- Locali
2
- Bagni
200
- m²
Caratteristiche
Descrizione
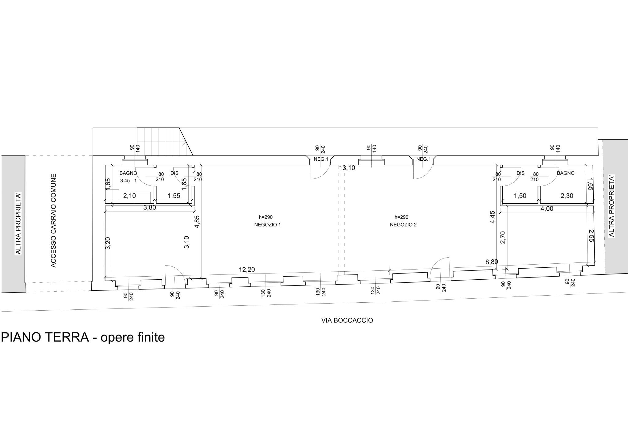
LOCALE COMMERCIALE IN LOCAZIONE – DIVISIBILE IN DUE UNITÀ – ALTA VISIBILITÀ
In Cerro Maggiore, in zona di fortissimo passaggio pedonale, grazie alla vicinanza immediata a scuole e piscina, proponiamo locale commerciale nuovo in locazione, con possibilità di divisione in due negozi indipendenti, ideale per una o più attività.
Caratteristiche principali
Ampio negozio fronte strada
Possibilità di frazionamento in due unità commerciali autonome
6 vetrine su strada che garantiscono massima visibilità
Zona vivace e frequentata durante tutto l’arco della giornata
Immobile completamente nuovo, moderno, da personalizzare e arredare
Destinazione ideale
Soluzione particolarmente indicata per caffetteria / bar diurno, con servizio di colazioni, brioche e proposte salate senza somministrazione di alcolici.
La possibilità di divisione rende l’immobile adatto anche a due attività distinte o a chi desidera uno spazio modulabile.
Posizione strategica per servire studenti, famiglie e utenti della piscina, dalla colazione alla merenda.
Dettagli
-
Prezzo €1.800/mese
-
Dimensioni 200 m²
-
Bagni 2
-
Anno di Costruzione 2025
-
Contratto In affitto
-
Tipologia Locale commerciale
-
Piano Piano Terra, Con accesso disabili
-
Locali 2
-
Riscaldamento Autonomo, A radiatori, Alimentato a metano
-
Piani edificio 1
-
Climatizzazione Predisposizione impianto
Stefania Rimoldi Immobiliare
Annunci simili
Quadrilocale ottimo stato, primo piano, Centro,Parabiago
Viale Santa Croce, Ravello, Parabiago, Milano, Lombardia, 20015, ItaliaLetti: 3
Bagni: 2
Garage/Box: 1
126 m²
- Appartamento
Chalet indipendente con camino e pietra a vista – Charvensod (AO), Frazione Pantaléon, vicino a Pila
Valle d'Aosta, 11012, ItaliaLetti: 2
Bagno: 1
110 m²
- Casa indipendente
CANTALUPO(Cerro Maggiore) Appartamento di due locali più servizi. Giardino. Cantina. Box
Via Regina Elena, Cantalupo, Cerro Maggiore, Milano, Lombardia, 20023, ItaliaLetto: 1
Bagno: 1
Garage/Box: 1
70 m²
- Appartamento
NUOVA VILLA SINGOLA A CANTALUPO
Via Luigi Zerbi, Cantalupo, Cerro Maggiore, Milano, Lombardia, 20023, ItaliaLetti: 3
Bagni: 2
Garage/Box: 1
120 m²
- Villa unifamiliare
LEGNANO: Appartamento di due locali più servizi. Cantina. Box
Guardia di Finanza - Comando Gruppo Legnano, 42a, Viale Pietro Toselli, Sant'Erasmo, Legnano, Milano, Lombardia, 20025, ItaliaLetto: 1
Bagno: 1
Garage/Box: 1
72 m²
- Appartamento